Aktuálně můžete v lokalitě Hradec Králové vybírat z nabídky 107 bytů.
Přehled nemovitostí: pronájem byty > 1+kk Zpět na přehled nabídek

Pronájem moderního bytu 1+kk s balkonem, Chlumec nad Cidlinou

18 m2

neuvedeno

osobní

B - Velmi úsporná

20

02.04.2026

Cena: 12500 CZK / objekt / měsíc
Poznámka k ceně: + 4000,- Kč služby a energie 1

Poslat dotaz k nabídce
Zásady používání osobních údajů

Prodejce

Makléř: Vacek Pavel

Telefon: 776 761 ...

E-mail: pavel.v ...

Zobrazit celý kontakt

Nemovitost nabízí

LORD - realitní kancelář spol. s r.o.

Hořická 976/5, 500 02 Hradec Králové

www.lord.cz

Zobrazit kontakt na RK

Zobrazit všechny nabídky RK

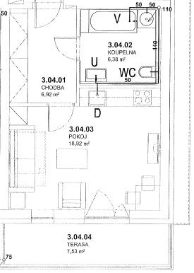
Pronájem moderního bytu 1+kk o výměře 42,81 m2 (z toho terasa 7,53 m2 a komora 3,06 m2), bez výtahu, 2. patro v novostavbě v Chlumci nad Cidlinou, Rooseveltova ulice. Byt je ideální pro jednotlivce či pár, kteří hledají komfortní bydlení v příjemném a bezpečném prostředí menšího města. - světlý a prakticky řešený byt - prostorná terasa vhodná k relaxaci - vybavená kuchyňská linka - součástí je rozkládací postel - komora na chodbě přímo před bytem - společná kolárna v domě - parkování na soukromém pozemku - novostavba s nízkými provozními náklady (tepelné čerpadlo, podlahové vytápění) - zeleň a parková úprava v okolí domu Obec nabízí kompletní občanskou vybavenost obchody, školu, školku, zdravotnická zařízení, restaurace i sportovní vyžití. Okolí domu v parkové úpravě, klidná a bezpečná lokalita. Výborná dojezdová vzdálenost na dálnici D11 se směrem na Prahu i Hradec Králové, což zajišťuje rychlé a pohodlné spojení za prací i zábavou. <a href="https://www.eurobydleni.cz/byty/1_kk/praha-3/obec-zizkov/prodej/"><strong>Prodej bytu 1+kk Praha 3, Žižkov</strong></a>




Pronájem bytu 1+kk Chlumec nad Cidlinou na Eurobydleni.cz


Nahoru