Makléř: Jana Štěpánová
Telefon: 605 458 ...
E-mail: jana.st ...
Zobrazit celý kontaktTelefon: 605 458 951
E-mail: jana.stepanova@qara.cz
Nemovitost nabízí
QARA s.r.o.
Šafaříkova 201/17, 120 00 Praha 2
Zobrazit kontakt na RK
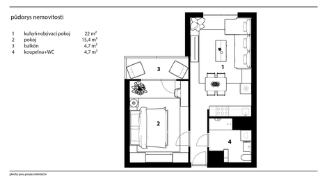
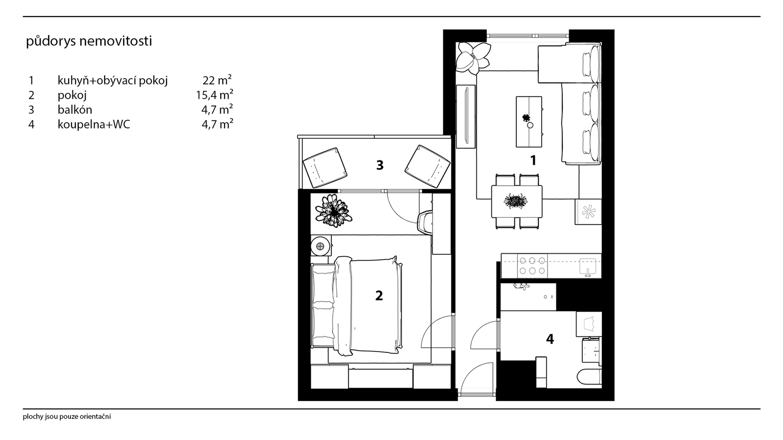
Rádi bychom vám nabídli světlý a útulný byt 2 + kk o užitné ploše 47 m2, situovaný v 8. podlaží panelového domu, který se nachází na Třídě Edvarda Beneše v Hradci Králové. Tento byt je ve velmi dobrém stavu a je ideální volbou pro jednotlivce nebo pár, kteří hledají komfortní bydlení v blízkosti centra města. Dispozice bytu nabízí příjemné a vzdušné prostory s výhledem na okolní zeleň. Součástí bytu je také lodžie, kde můžete příjemně v klidu relaxovat. V bytě je k dispozici komora na patře, což poskytuje navíc úložný prostor pro vaše potřeby. Dům je vybaven dvěma výtahy, což je výhodou obzvlášť při stěhování větších kusů nábytku. Bezpečnostní prvky jako vchod na čip a automatické otevírání dveří vchodu přispívají k pocitu bezpečí a pohodlí. Lokalita, ve které se byt nachází, je velmi vyhledávaná. V blízkém okolí najdete veškerou občanskou vybavenost, včetně obchodů, restaurací, polikliniky a nákupního centra. Díky skvělé dostupnosti MHD a silnice se snadno dostanete do centra města nebo na jiné důležité cíle. Celkově se jedná o ideální nemovitost pro ty, kteří hledají pohodlné bydlení s veškerým komfortem na dosah ruky. V případě zájmu o prohlídku nás neváhejte kontaktovat.
Prodej bytu 2+kk, 54 m2, Hradec Králové, ul. Bidlova
Hledáte v Hradci Králové byt bez dalších investic? Pak si Vám dovolujeme nabídnout tento velice zdařile zrekonstruovaný byt 2+kk o podlahové ploše 54…
Prodej bytu 2+kk, 47 m2, Hradec Králové, ul. Durychova
Nabízíme k prodeji útulný byt 2+kk o užitné ploše 47 m2, situovaný v 4. patře panelového domu v oblíbené části Nový Hradec Králové - ul. Durychova.…